Lisboa Carmo Hotel
EN
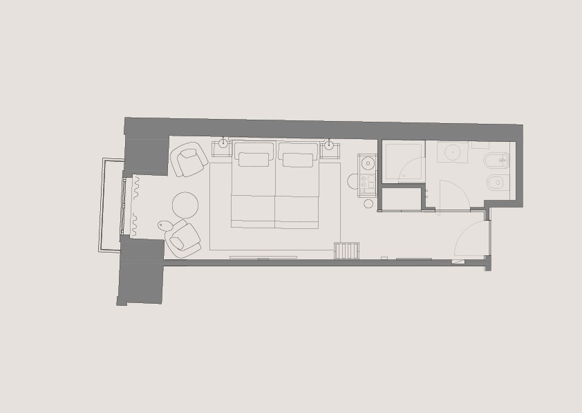
The Lisboa Carmo Hotel is a charming hotel located in the heart of Lisbon, specifically in the Chiado neighborhood, one of the most vibrant and historic areas of the city. This hotel combines classic charm with modern comfort, offering a sophisticated and welcoming experience to its guests. In 2023, ette was invited to undertake the renovation project for three of the five floors of guest rooms at the hotel. This is the model room that served as the basis for the renovation of the three floors at Lisboa Carmo Hotel, located at Largo do Carmo in Lisbon. With a striking and carefully preserved façade, the Lisboa Carmo Hotel stands out for its architecture dating back to the 19th century, but with a renovation that integrates contemporary details, creating harmony between the past and the present. The studio made use of elements from the original classic-style building, selecting vinyl flooring that seems like wood and has a patterned design, and included boiserie on the bedroom walls. Within one of these decorative elements, wallpaper with a floral pattern from Cole&Son was applied. The remaining walls in the room were painted with a green tone matching the wallpaper. In the entrance area, two walls and the door are fully clad in walnut veneer, a material also used in the room’s furniture, providing both visual and acoustic comfort. The room is composed of three distinct areas: a support/work area, a resting area, and a sitting/reading area. For the work area, a plaster piece by Portuguese artist Beatriz Roquette was proposed for this mock-up room, which conveys exactly what ette sought to assert in this project: modernizing the rooms without losing the context in which they are situated – a Pombaline building. Many of the rooms offer breathtaking views of the historic streets or the rooftops of Lisbon, providing an unique immersion in the city.
Location: Chiado, Lisbon, Portugal
Client: Lux Hotels
Year: 2024
Photography: Catarina Proença de Carvalho
PT
O Lisboa Carmo Hotel é um charmoso hotel localizado no coração de Lisboa, mais especificamente no bairro do Chiado, uma das zonas mais vibrantes e históricas da cidade. Este hotel combina o charme clássico com o conforto moderno, oferecendo uma experiência sofisticada e acolhedora aos seus hóspedes. Em 2023, a ette foi convidada a fazer o projeto de renovação de três dos cinco pisos de quartos do hotel. Este é o quarto modelo que serviu de base para a remodelação dos três pisos de quartos do Lisboa Carmo Hotel, situado no Largo do Carmo, em Lisboa. Com uma fachada imponente e cuidadosamente preservada, o Lisboa Carmo Hotel destaca-se pela sua arquitetura que remonta ao século XIX, mas com uma renovação que integra detalhes contemporâneos, criando uma harmonia entre o passado e o presente. O atelier tirou partido de elementos do edifício original, de estilo clássico, escolheu um pavimento vinílico, com aspeto de madeira e com desenho, e incluiu ainda boiserie nas paredes quartos. Dentro de um destes elementos decorativos foi colocado papel de parede com motivo floral, da Cole&Son. As restantes paredes do quarto foram pintadas com um tom verde proveniente do papel de parede. Na zona da entrada, duas paredes e a porta estão totalmente forradas a folha de nogueira, material que é utilizado também em todo o mobiliário do quarto e que traz muito conforto, visual e acusticamente. O quarto é composto por três zonas distintas: zona de apoio/trabalho, zona de descanso e zona de estar/leitura. Para a zona de trabalho foi proposta uma peça em gesso da artista portuguesa Beatriz Roquette, que é uma peça que transmite precisamente o que a ette procurou afirmar neste projeto: modernizar os quartos, sem perder o contexto em que se inserem – um edifício pombalino. Muitos dos quartos oferecem uma vista deslumbrante para as ruas históricas ou para os telhados de Lisboa, proporcionando uma imersão única na cidade.
Localização: Chiado, Lisboa, Portugal
Cliente: Lux Hotels
Ano: 2024
Fotografia: Catarina Proença de Carvalho
23 de Janeiro, 2025
